de Staalverbinding

Deelnemer

Joep Donkers

Provincie

Noord-Brabant

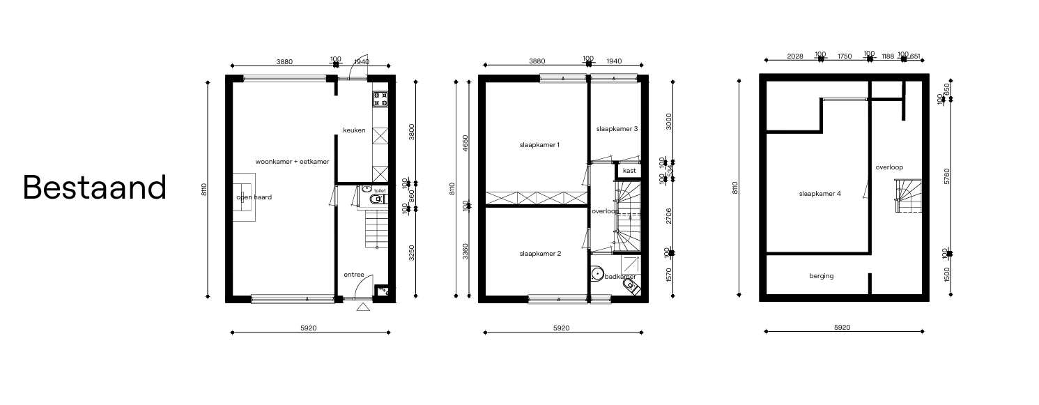
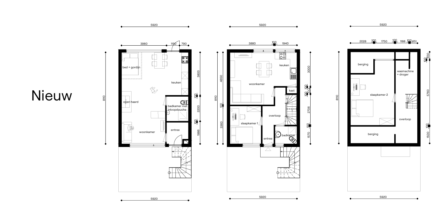
“Staalverbinding” biedt een directe en praktische oplossing voor het tekort aan betaalbare en toekomstbestendige woningen. De nieuwe stalen trapstructuur aan de gevel vormt de verbinding tussen twee zelfstandige woningen en brengt de oudere bewoner beneden en de studenten of starters boven op een duidelijke en logische manier samen. Door de bestaande trap te verwijderen ontstaat beneden een gelijkvloerse woning met slaapkamer en een inloopdouche. Boven ligt een compacte woning met eigen keuken en entree. Ik heb gekozen voor een standaard jaren zeventig rijtjeswoning omdat dit het meest voorkomende woningtype in Nederland is en daardoor de grootste toepasbaarheid biedt. Het ontwerp gebruikt de bestaande ruimte efficiënter doordat de toegang buiten wordt verplaatst en er binnen meer leefruimte ontstaat. De duurzaamheid verbetert omdat de ingreep weinig materiaal vraagt en de bestaande structuur behouden blijft. De betaalbaarheid blijft haalbaar doordat de bovenwoning lage woonlasten heeft en de studenten ondersteuning kunnen bieden aan de bewoner beneden. Dit versterkt het dagelijkse contact en creëert een duidelijke sociale verbinding tussen generaties. De ruimtelijke kwaliteit stijgt doordat de stalen trapstructuur een rustig en herkenbaar element aan de gevel vormt.
Project voor afbeelding
Project na afbeelding

Stem op je favoriete ontwerp

Stemmen gesloten.