Een tweede leven voor de buitenwijk (Woningtype 1)

Deelnemer

Bart Jonkers

Provincie

Noord-Holland

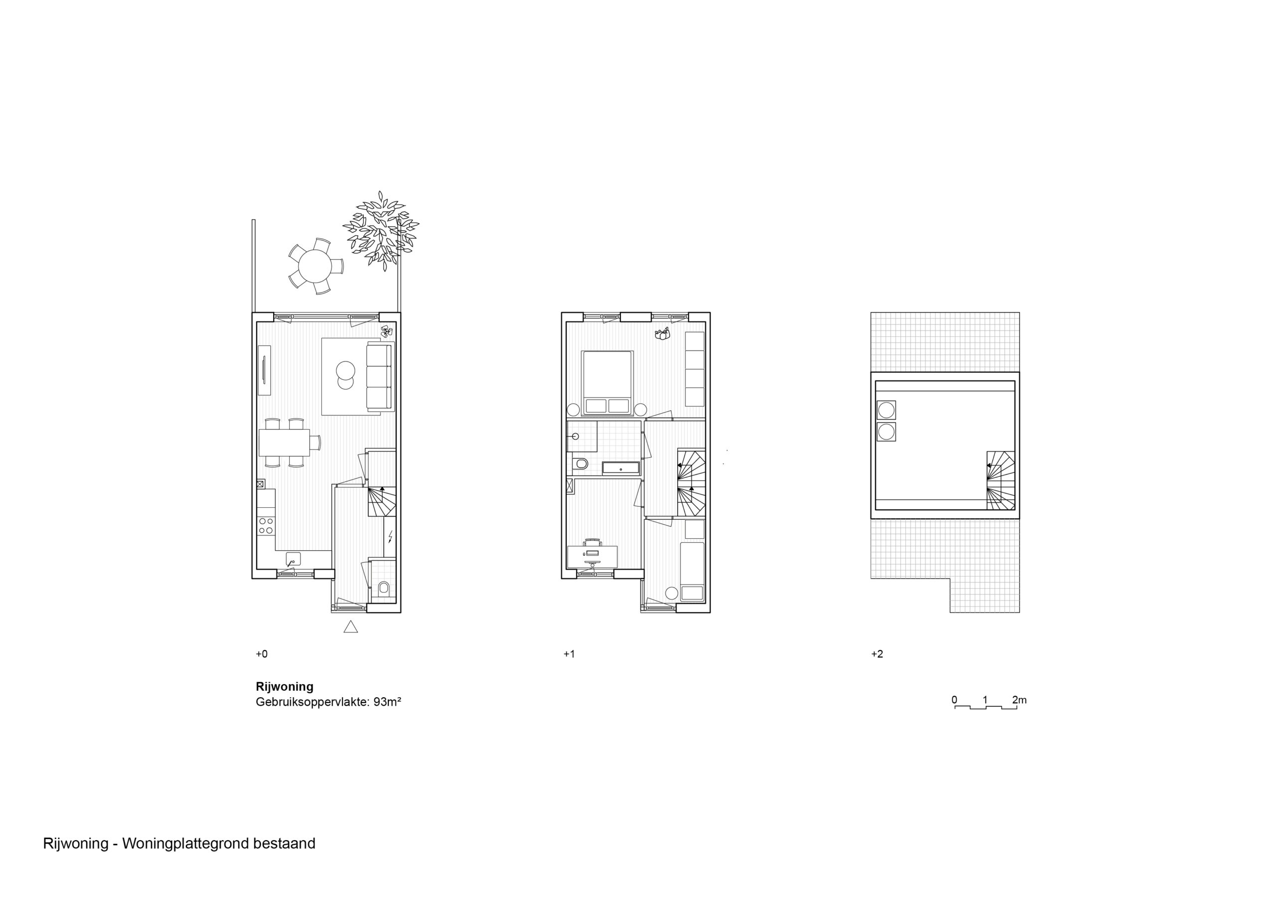
Deze smalle rijwoning van 4,8 meter breed uit de jaren ’80 wordt getransformeerd tot twee zelfstandige woningen: een levensloopbestendige benedenwoning en een starterswoning op de verdieping. De nieuwe plattegrond bevat een vaste kern met badkamer en techniek centraal in de woning, waardoor een flexibele indeling ontstaat met ruimte voor een grote leefkeuken en een comfortabele zithoek, deze zijn onderling uitwisselbaar. Het huidige vlakke en functionele gevelbeeld wordt verrijkt met grotere gevelopeningen. Een terugliggende entreenis met bankje stimuleert ontmoeting tussen bewoners en versterkt de relatie met de straat. Aan de achterzijde biedt een loggia in de uitbouw beschutting tegen hitte en extra privacy. In het ontwerp wordt zoveel mogelijk gebruikgemaakt van biobased materialen. De constructie wordt uitgevoerd in houtskeletbouw, de gevels krijgen een houten afwerking en de plint wordt robuust uitgevoerd in een CO₂-neutrale groene steen. Alle daken worden voorzien van mossedum, met diepe plantenbakken langs de dakranden, wat zowel de biodiversiteit als de privacy tussen de woningen vergroot. Het concept kan bij meerdere woningen worden toegepast; bij hoekwoningen kan de entree met trap langs de buitengevel worden geplaatst, wat extra binnenruimte oplevert.
Project voor afbeelding
Project na afbeelding

Stem op je favoriete ontwerp

Stemmen gesloten.