Een tweede leven voor de buitenwijk (Woningtype 2)

Deelnemer

Bart Jonkers

Provincie

Noord-Holland

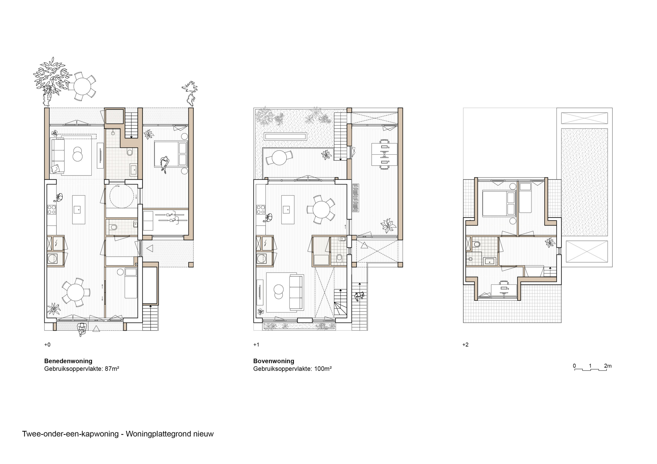
De twee-onder-een-kapwoning van 6 meter breed uit de jaren ’80 wordt opgesplitst in een levensloopbestendige woning voor een ouder echtpaar op de begane grond en een gezinswoning op de verdieping met een grote werkruimte boven de garage. De nieuwe plattegrond bevat een vaste kern met badkamer en techniek centraal in de woning, waardoor een flexibele indeling ontstaat met ruimte voor een grote leefkeuken en een comfortabele zithoek. Deze zijn onderling uitwisselbaar. Het huidige vlakke en functionele gevelontwerp wordt verrijkt met grotere gevelopeningen. Een terugliggende entreenis met bankje stimuleert ontmoeting tussen bewoners en versterkt de relatie tussen woning en straat. Aan de achterzijde biedt een loggia in de uitbouw beschutting tegen hitte en extra privacy. Uitgangspunt in het ontwerp is het gebruik van zoveel mogelijk biobased materialen. De constructie wordt uitgevoerd in houtskeletbouw, de gevels krijgen een houten afwerking en de plint wordt robuust uitgevoerd in een CO₂-neutrale groene steen. Alle daken worden voorzien van mossedum, met diepe plantenbakken langs de dakranden. Dit vergroot de biodiversiteit én de privacy tussen beneden- en bovenburen.
Project voor afbeelding
Project na afbeelding

Stem op je favoriete ontwerp

Stemmen gesloten.