Eén voordeur, twee woningen

Deelnemer

Marit Stam

Provincie

Utrecht

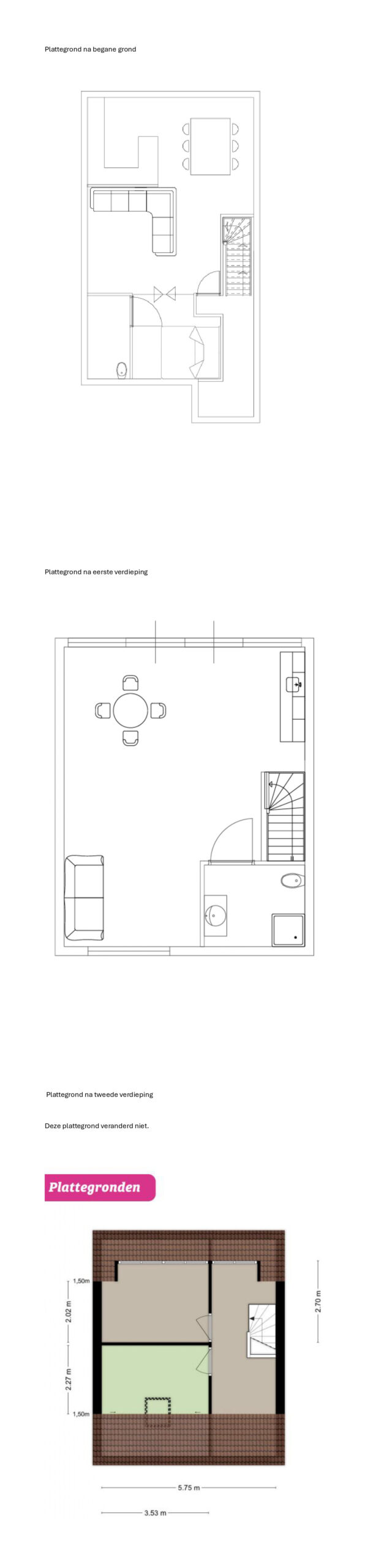
Dit huis biedt iets bijzonders: ruimte voor twee gezinnen in één huis. Via één gezamenlijke voordeur kom je binnen, waarna ieder gezin zijn eigen woonruimte heeft. Alles is apart geregeld: keuken, badkamer en leefruimte. Zo heb je twee zelfstandige woningen. Voor buitenstaanders is het gewoon één mooi huis. Van binnen is het een slimme oplossing om meer uit de ruimte te halen. Ideaal als je met familie wilt wonen, of als je een deel wilt verhuren. Deze indeling maakt het huis niet alleen praktischer, maar ook interessanter voor de toekomst. Hierdoor kunnen er twee gezinnen wonen op één plek Zo combineer je comfortabel wonen met het woningtekort in Nederland. Eén voordeur, twee woningen, eindeloze opties. De kosten voor deze verbouwing komen ongeveer op €50.000 uit.
Project voor afbeelding
Project na afbeelding

Stem op je favoriete ontwerp

Stemmen gesloten.