Familiewonen, het kan in de Veste!

Deelnemer

Marciano Sangoer

Provincie

Noord-Brabant

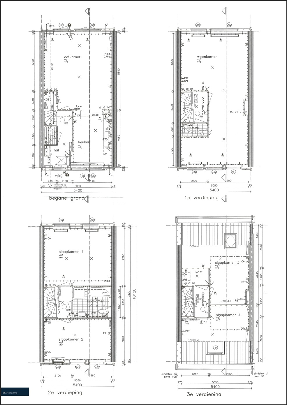
De Veste vormt het hart van de fraaie Vinex-wijk Brandevoort. Het is de herkenbare vestingstadarchitectuur die zorgt voor een prettig woonklimaat. De diverse architecten die aan deze blokken hebben gewerkt hopen dat het plezier waarmee zij het plan ontwierpen bijdraagt aan een fijn thuis voor de bewoners. Als jonge architect zou ik graag mijn visie hieraan toe willen voegen. Tijdens één van mijn reizen ben ik namelijk geïnspireerd geraakt door mijn persoonlijke familiale (Molukse) achtergrond. Ik ben van mening geraakt dat het vertalen van principes van gedeeld wonen naar een nieuwe gemeenschappelijke manier van leven, architectuur de huidige mentaliteit van de Nederlandse bevolking kan beïnvloeden én als strategie kan dienen waarin wonen, werken en zorg dragen steeds meer met elkaar verweven raken. Laat de (bestaande) woningen met vier bouwlagen in de Veste hiervoor dé uitstekende mogelijkheid zijn om meerdere generaties samen te laten leven in één woning. Het herenhuis omvat maar liefst 184m2 woonoppervlak! Familiewonen: Twee (bovenste) verdiepingen voor opa en oma, en twee verdiepingen voor papa, mama en de kinderen. Allebei hun eigen voordeur, woonkamer, keuken, badkamer, slaapverblijven én buitenruimte. Samen onder één dak, maar toch apart van elkaar wonen. Mooi toch?..
Project voor afbeelding
Project na afbeelding

"*" geeft vereiste velden aan

Stem op je favoriete ontwerp

Onze deskundige vakjury beoordeelt de inzendingen op de 5 criteria waaronder originaliteit en toepasbaarheid en selecteert drie winnaars. En er is een speciale publieksprijs. De winnaar daarvan bepaal jij.

Je e-mailadres wordt uitsluitend gebruikt om je unieke stem te registreren en de uitslag van de challenge te sturen. We delen je gegevens niet met derden en verwijderen deze na afloop van de challenge.