Garagewoning

Deelnemer

Maarten Bakker

Provincie

Utrecht

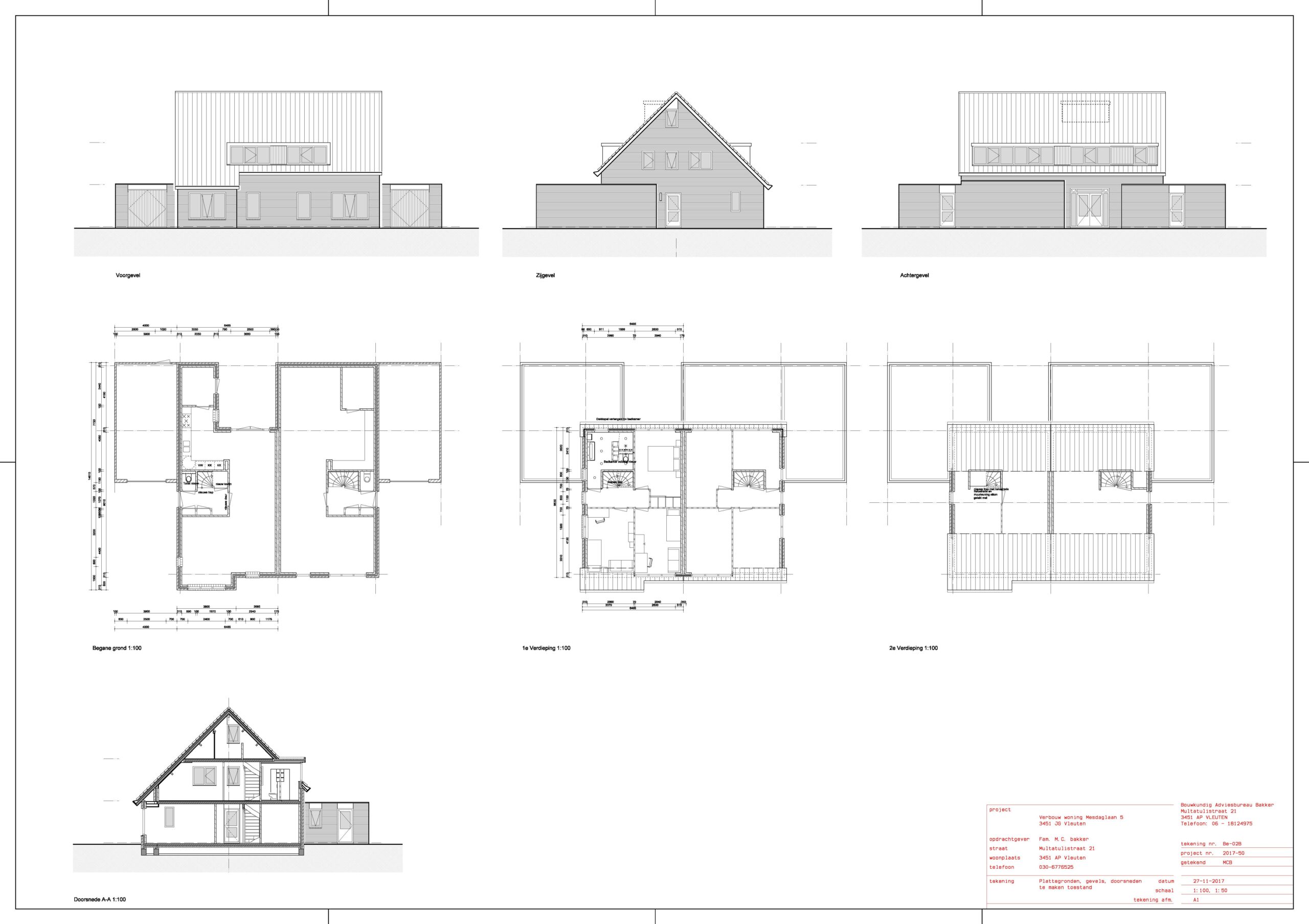
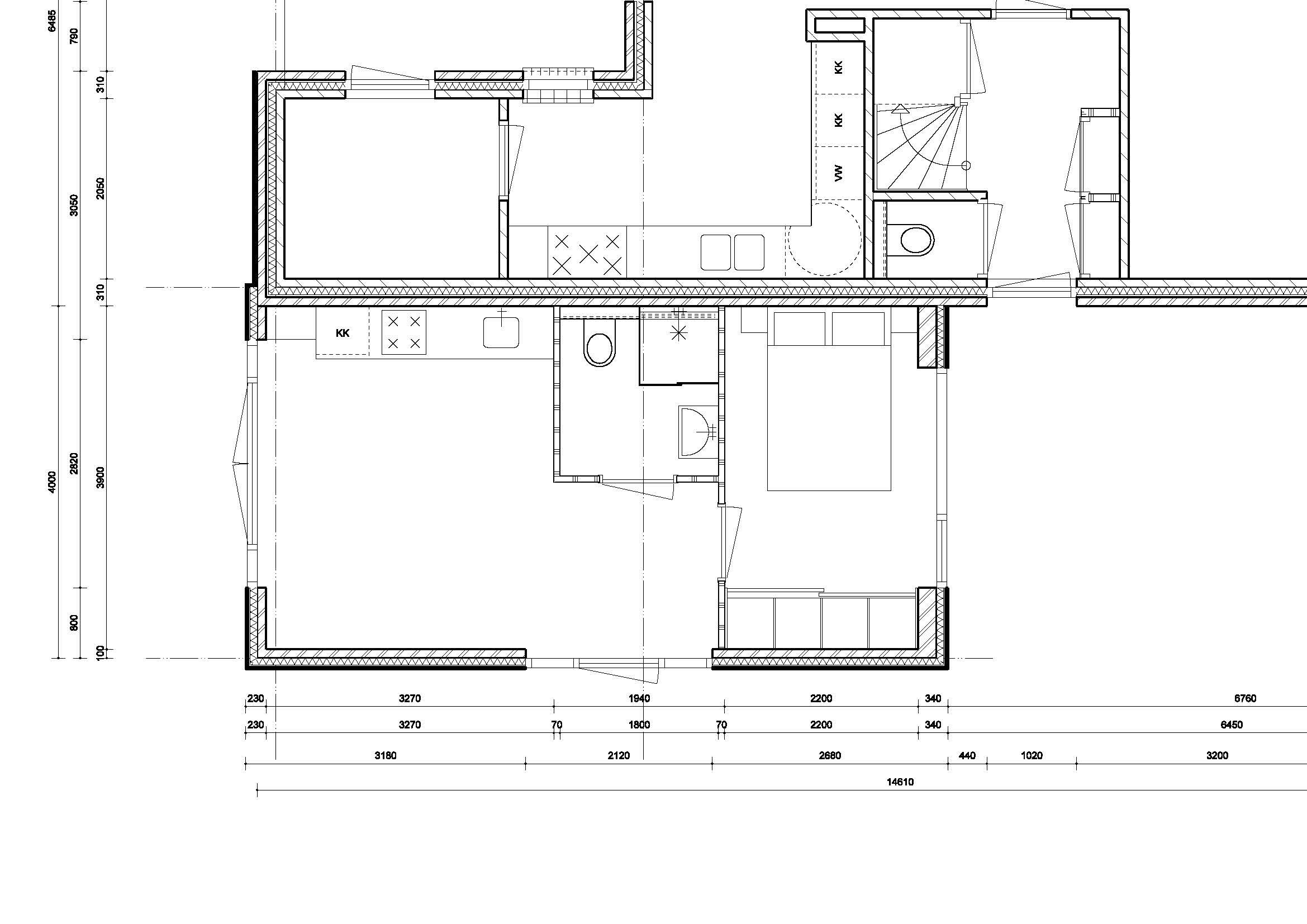
Met de afsplitsing van de bestaande garage ontstaat een unieke kans om binnen de huidige 2-onder-1-kapwoning een volledig zelfstandig appartement te realiseren. Deze slimme herontwikkeling benut de bestaande ruimte optimaal en creëert een duurzame, moderne woonunit met eigen entree, sanitaire voorzieningen en een volwaardige leefruimte. Het nieuwe appartement biedt privacy en zelfstandigheid, zonder afbreuk te doen aan de uitstraling of functionaliteit van de hoofdwoning. Deze splitsing is op vele plaatsen in het land toepasbaar bij dit type woning. Het appartement is ideaal voor mantelzorg, studerende kinderen, starters of als rendabele verhuureenheid. Bovendien sluit het concept naadloos aan op actuele woontrends waarin flexibiliteit, meergeneratiewonen en compacte, energiezuinige woningen centraal staan. Door slim te isoleren en gebruik te maken van duurzame installaties ontstaat een toekomstbestendige woonoplossing die voldoet aan moderne comfort- en efficiëntie-eisen. Met minimale ingrepen ontstaat een levensloopbestendig appartement wat gerealiseerd kan worden voor ca. € 55.000,-
Project voor afbeelding
Project na afbeelding

Stem op je favoriete ontwerp

Stemmen gesloten.