Gasloos in de Gasstraat waar ooit de Gasfabriek stond

Deelnemer

walther Dingemans

Provincie

Noord-Brabant

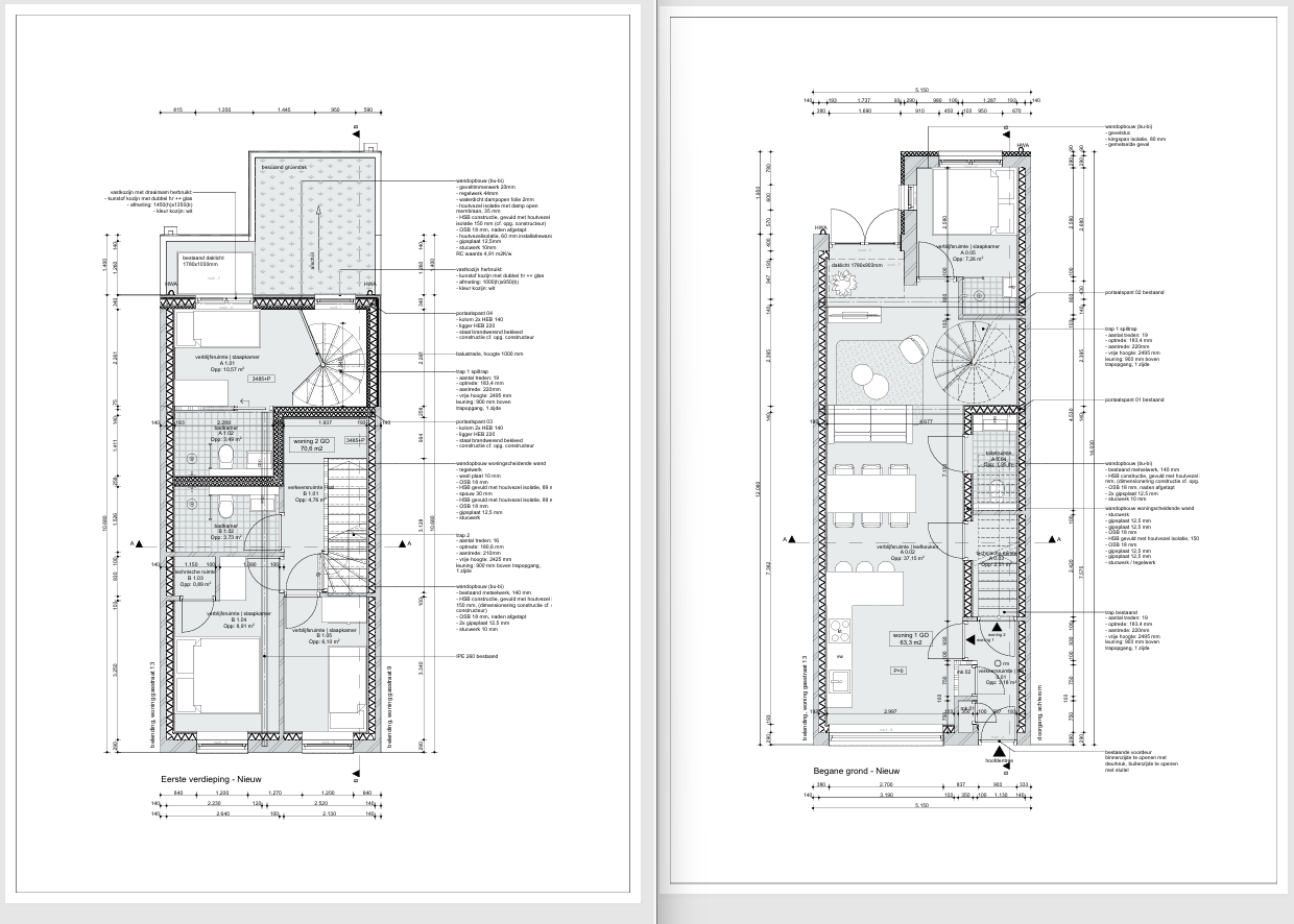
Dit oude pand uit 1905 met twee bouwlagen Compleet Biobased inbox gerenoveerd WTW in de beneden woning met extra slaapkamer op de 1e verdieping met eigen trap De boven woning met eigen trap met twee slaapkamers wonen en slapen van elkaar waardoor meer rust en minder irritatie kan ontstaan
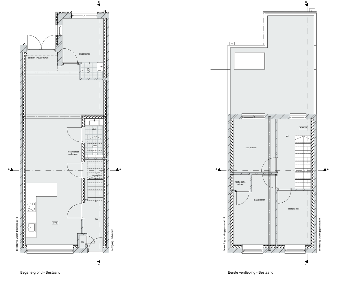
Project voor afbeelding
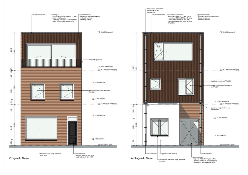
Project na afbeelding

"*" geeft vereiste velden aan

Stem op je favoriete ontwerp

Onze deskundige vakjury beoordeelt de inzendingen op de 5 criteria waaronder originaliteit en toepasbaarheid en selecteert drie winnaars. En er is een speciale publieksprijs. De winnaar daarvan bepaal jij.

Je e-mailadres wordt uitsluitend gebruikt om je unieke stem te registreren en de uitslag van de challenge te sturen. We delen je gegevens niet met derden en verwijderen deze na afloop van de challenge.