Grenshuis Duo

Deelnemer

Jan Groenveld

Provincie

Gelderland

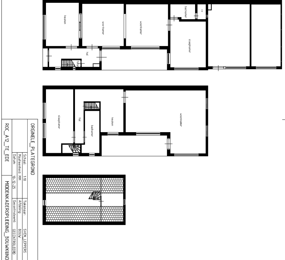
De woning ligt in het dorp Philippine aan de Belgische grens. Het plan is om de woning vertikaal te splitsen in 2 woningen. De nieuwe wanden die in de woning worden geplaatst zijn Faay wanden. Hierdoor is minder onderhoud nodig in de woning en wordt de woning duurzaam uitgebreid. Het totale oppervlakte van de bestaande woning is 185m² en is nu opgedeeld in een woning van 88m² en 97m². De uiteindelijke kosten voor het ombouwen is iets meer dan €78.000.
Project voor afbeelding
Project na afbeelding

Stem op je favoriete ontwerp

Stemmen gesloten.