Het Flexibele Stadshuis

Deelnemer

Guinevere Moerman

Provincie

Zuid-Holland

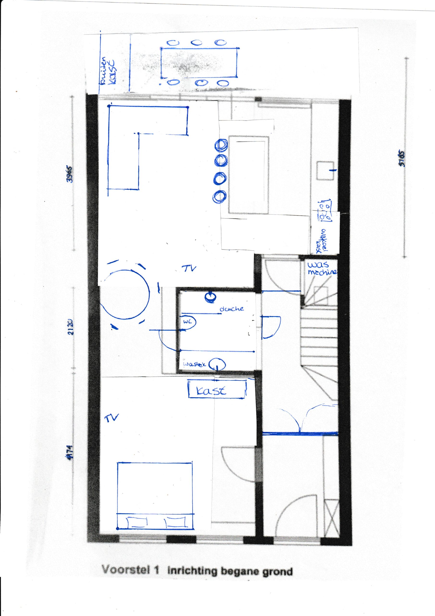
Het Flexibele Stadshuis laat zien hoe een klassieke Haagse woning uit 1884 met minimale ingrepen meegroeit met de levensloop van haar bewoners. Door drie slim geplaatste deuren, een dubbel toegankelijke badkamer en een gescheiden trappenhuis kan de woning schakelen tussen één ruime woning en twee zelfstandige wooneenheden. Hierdoor ontstaan mogelijkheden voor mantelzorg, tijdelijke verhuur of generatiewonen. Ik woon nu met de kinderen boven, maar kan ook later zelf als de kinderen uit huis zijn beneden gaan wonen. Het ontwerp benut de bestaande structuur volledig en behoudt de ruimtelijke kwaliteit: een doorlopende lichtlijn van straat tot tuin, een royale woonkeuken en een glazen pui zorgen voor een lichte en open woning. De ingrepen zijn beperkt, betaalbaar en direct uitvoerbaar. Zo ontstaat flexibiliteit zonder sloop, zonder verspilling en zonder verlies aan comfort. Het Flexibele Stadshuis is niet alleen een persoonlijke oplossing, maar een breed toepasbaar model voor de stad. In Den Haag staan honderden vergelijkbare woningen uit dezelfde periode, vaak te groot voor één huishouden maar te waardevol om te verlaten. Door deze huizen slim te openen en te sluiten waar dat nodig is, kan de bestaande woningvoorraad groeien van binnenuit: duurzaam, zorgvuldig en sociaal
Project voor afbeelding
Project na afbeelding

Stem op je favoriete ontwerp

Stemmen gesloten.