Meer huis, meer thuis

Deelnemer

Colin Langereis

Provincie

Noord-Holland

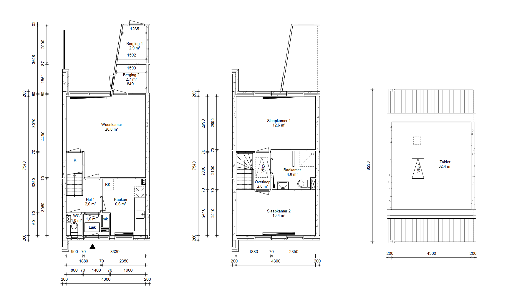
Ons plan voegt op een slimme en betaalbare manier een extra, zelfstandige woning toe aan een bestaande rijtjeswoning, met behoud van comfort voor de huidige bewoner. De oorspronkelijke woning blijft volledig levensloopbestendig: drempelloos, met slaap- en badkamer op de begane grond en een ruime inloopdouche. De extra woning (±50 m²) is geschikt voor twee personen en beschikt over een keuken, douche, toilet en slaapkamer. Duurzaamheid staat centraal: door de bestaande gebouw zoveel mogelijk te gebruiken en zo min mogelijk aan te passen. Het ontwerp is betaalbaar doordat het eenvoudig en repeteer baar is, met beperkte bouwkosten en lage woonlasten. De ruimtelijke kwaliteit is nog steeds geschikt voor 2 personen op de begaande grond en 2 personen op de eerste en tweede verdiepingen. Tot slot is het plan toepasbaar op miljoenen rijtjeswoningen in Nederland en daarmee snel schaalbaar.
Project voor afbeelding
Project na afbeelding

Stem op je favoriete ontwerp

Stemmen gesloten.