Mitose woning

Deelnemer

Frank Hijmans

Provincie

Gelderland

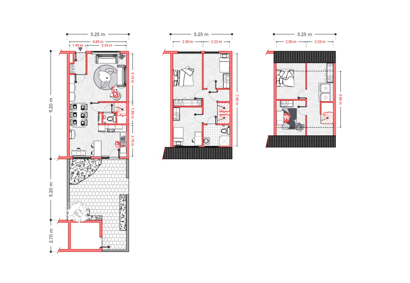
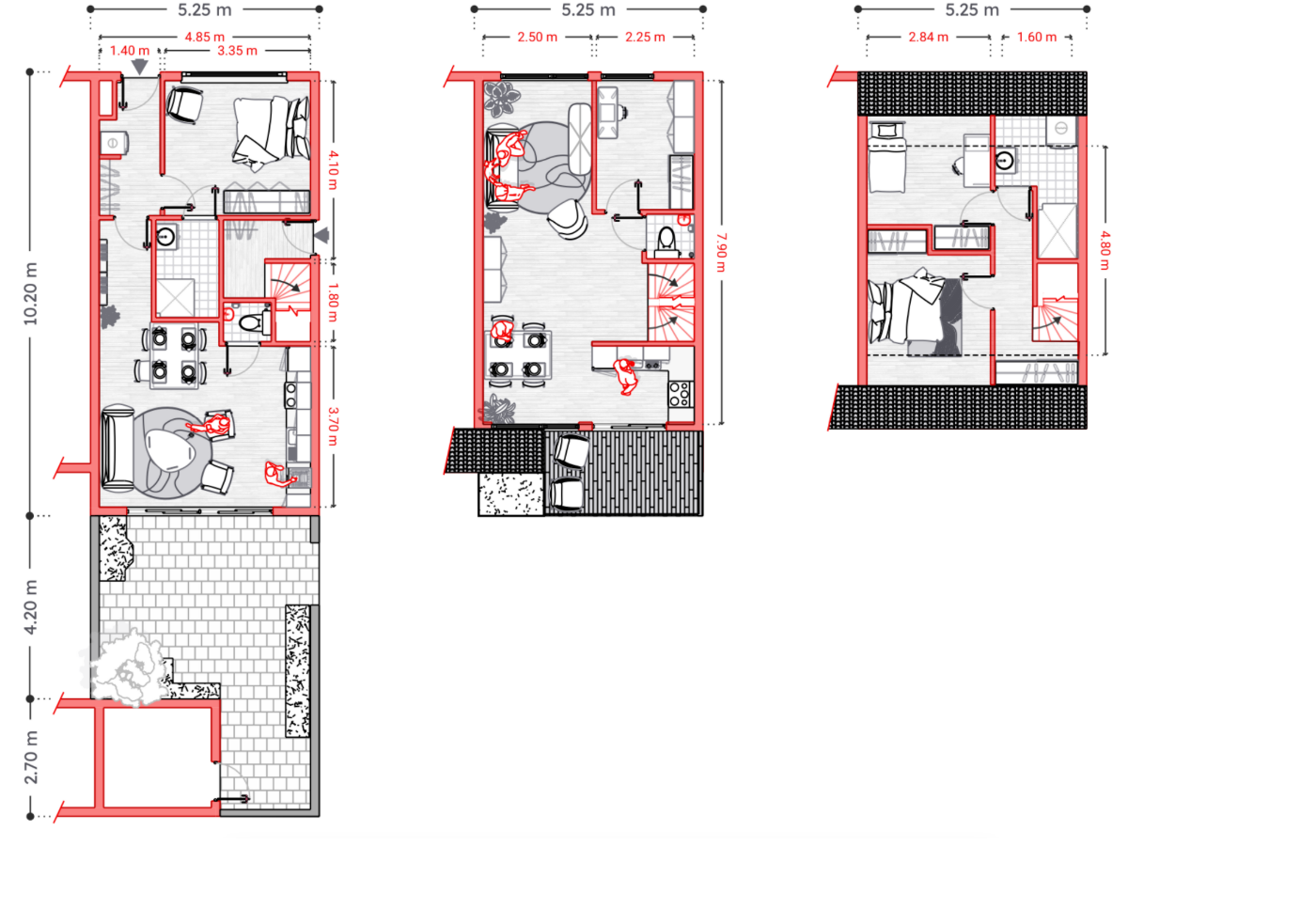
In dit creatieve ontwerp wordt een bestaande hoekwoning omgevormd tot twee zelfstandige woningen: een gelijkvloerse woning van 37 m² en een bovenwoning van 60 m². Door een volledige verbouwing, een uitbouw met balkon en een extra voordeur ontstaat een slimme en ruimtelijk aantrekkelijke oplossing die laat zien hoe één woning ruimte kan bieden aan twee huishoudens. De benedenwoning is levensloopbestendig: drempelvrij, gelijkvloers en geschikt voor één persoon of een ouder stel dat in de eigen buurt wil blijven wonen. De bovenwoning biedt starters een zelfstandige, compacte woning met een eigen entree en buitenruimte. Met een verwachte investering van €100.000 is het ontwerp betaalbaar, duurzaam en opschaalbaar, dankzij isolatie, energiezuinige installaties en hergebruik van bestaande materialen. De ruimtelijke kwaliteit wordt versterkt door de zorgvuldige vormgeving van de uitbouw en het balkon, die naadloos aansluiten op de bestaande architectuur en de uitstraling van de buurt verbeteren. Dit concept is toepasbaar op veel vergelijkbare hoekwoningen in Nederland en biedt een realistisch, opschaalbaar antwoord op de woningnood: twee passende, duurzame woningen binnen dezelfde footprint.
Project voor afbeelding
Project na afbeelding

"*" geeft vereiste velden aan

Stem op je favoriete ontwerp

Onze deskundige vakjury beoordeelt de inzendingen op de 5 criteria waaronder originaliteit en toepasbaarheid en selecteert drie winnaars. En er is een speciale publieksprijs. De winnaar daarvan bepaal jij.

Je e-mailadres wordt uitsluitend gebruikt om je unieke stem te registreren en de uitslag van de challenge te sturen. We delen je gegevens niet met derden en verwijderen deze na afloop van de challenge.