Paltelaan 62a – 2 huizen op de plek van 1

Deelnemer

Djurre Lankhorst

Provincie

Zuid-Holland

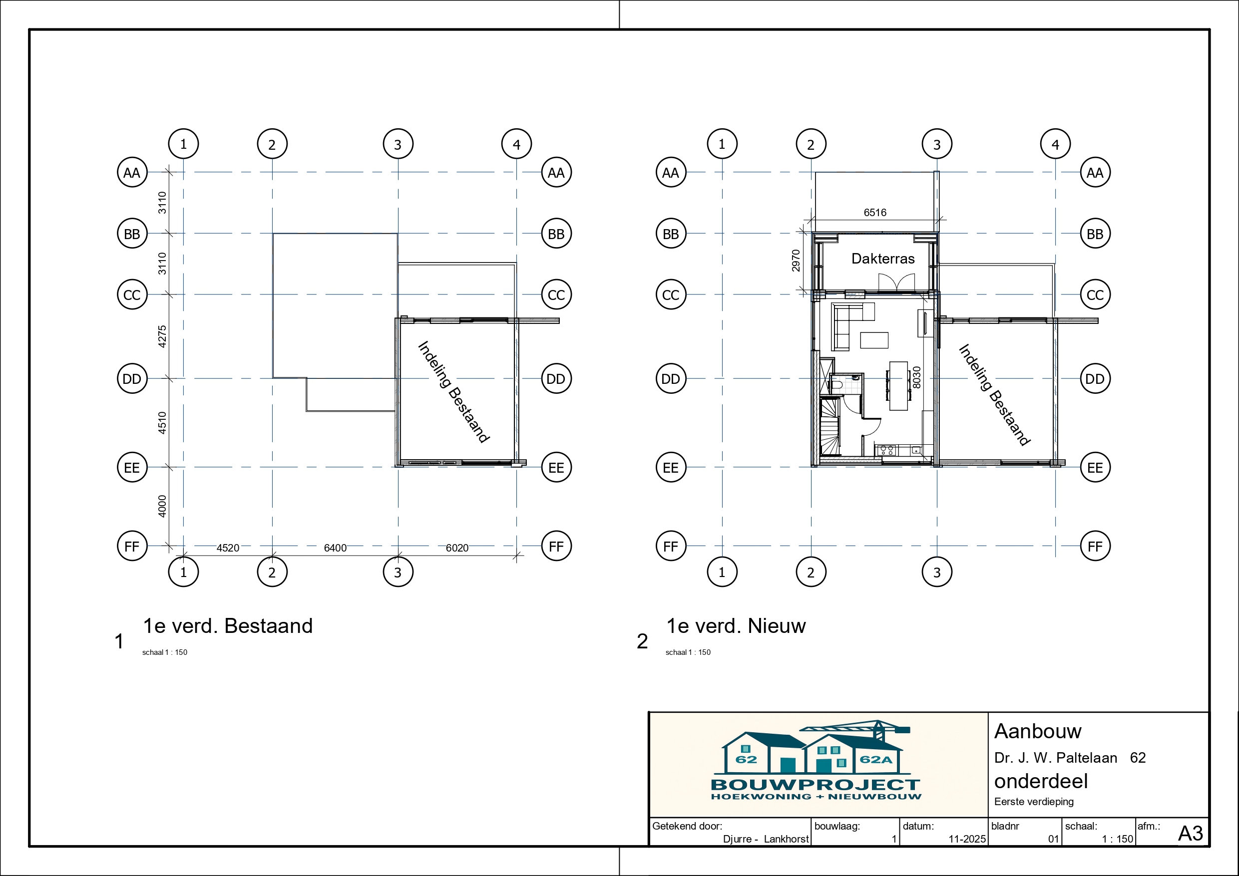
Door het bouwen boven op een stuk tuin dat nu niet gebruikt wordt en het bouwen op een garage wordt de ruimte optimaal benut en blijft het straatbeeld behouden. De esthetische eigenschappen van de bestaande woningen worden doorgezet in de nieuw te bouwen woning. Door de redelijk kleine ruimte op de begane grond flexibel te houden, is het later ook mogelijk deze te gebruiken voor een kantoor of werkruimte aan huis. De 1e verdieping dient als woonkamer en keuken en de zolder met dakkapel fungeert als slaapverdieping. Door deels op de garage, op bestaande fundering en naast een bestaande woning te bouwen, wordt er bespaard op diverse materialen t.o.v. een standaard nieuw te bouwen woning. Daarnaast merken de huidige bewoners (waar ik er zelf één van ben) amper iets van de nieuw te bouwen woning in de eindsituatie. De bestaande woning hoeft uiteindelijk alleen een washok in te leveren qua ruimte en een aantal m² aan tuin dat in de huidige situatie niet gebruikt werd. In Zoetermeer zijn er meerdere woningen gesitueerd naast een garageboxcluster of met een ruime voor- en zijtuin. Dit principe kan dus verder in de stad en andere steden doorgezet worden zonder het straatbeeld aan te tasten.
Project voor afbeelding
Project na afbeelding

Stem op je favoriete ontwerp

Stemmen gesloten.