Puntje erbij

Deelnemer

Sofie van der Steen

Provincie

Noord-Brabant

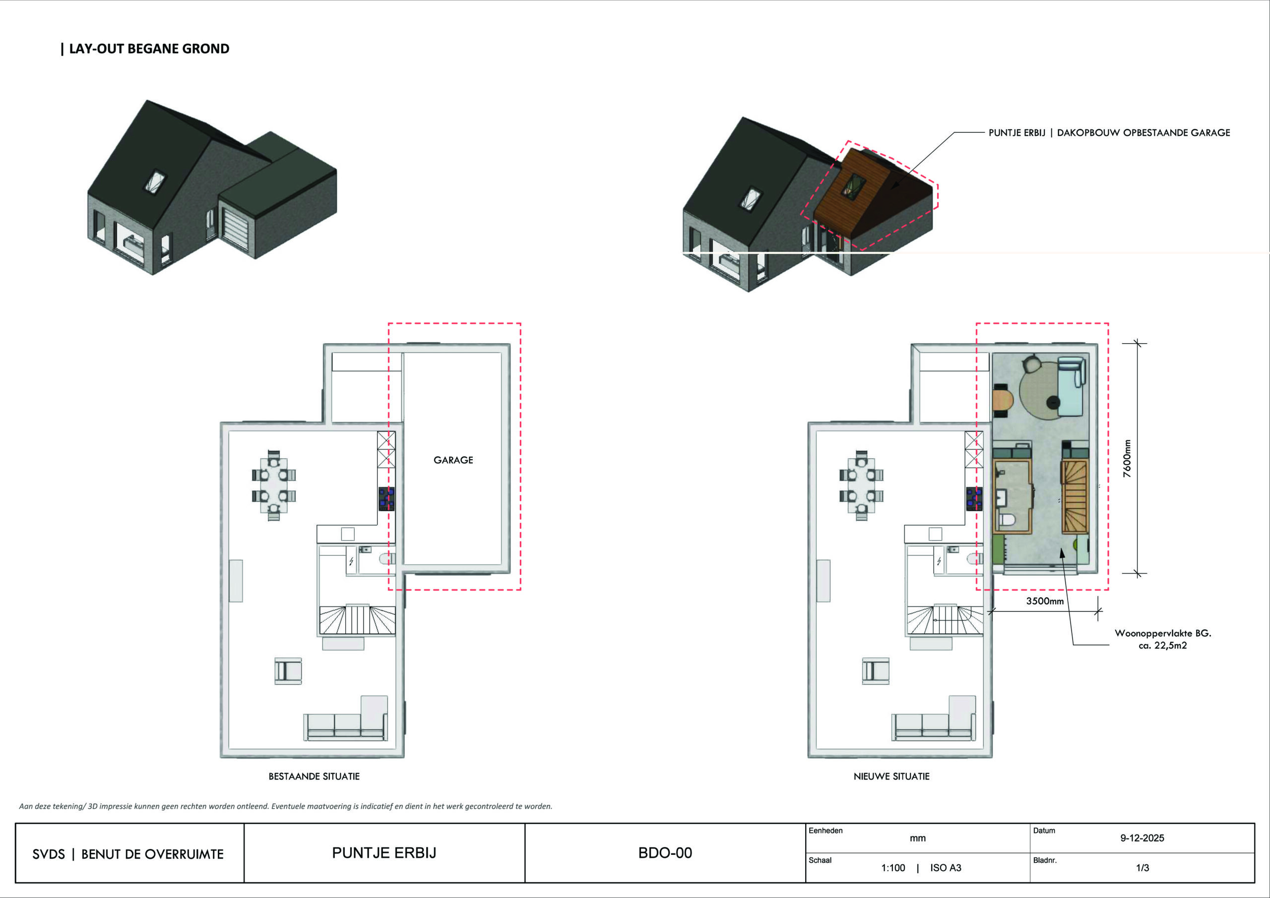
Het concept ‘Puntje erbij’ betreft het creatief transformeren van een bestaande aan een woning aangebouwde garage (zoals we er velen zien in het Nederlandse straatbeeld) tot een volwaardige, zelfstandige woonruimte voor één persoon van ca. 36m2. Door gebruik te maken van prefab houten elementen, zoals een dakopbouw, een compacte natte cel, een trap met daaronder opbergruimte en een kleine maar functionele keuken, wordt de ruimte op een duurzame en betaalbare manier heringericht. Dankzij de prefab constructies zijn de oplossingen niet alleen snel te realiseren, maar ook breed toepasbaar op verschillende typen garages. Dit concept biedt een innovatieve en toekomstbestendige oplossing voor de groeiende vraag naar flexibele woonoplossingen. Betaalbaar, duurzaam, eenvoudig te realiseren, compleet en comfortabel.
Project voor afbeelding
Project na afbeelding

Stem op je favoriete ontwerp

Stemmen gesloten.