Veranda in de lucht

Deelnemer

Paul Geurts

Provincie

Zuid-Holland

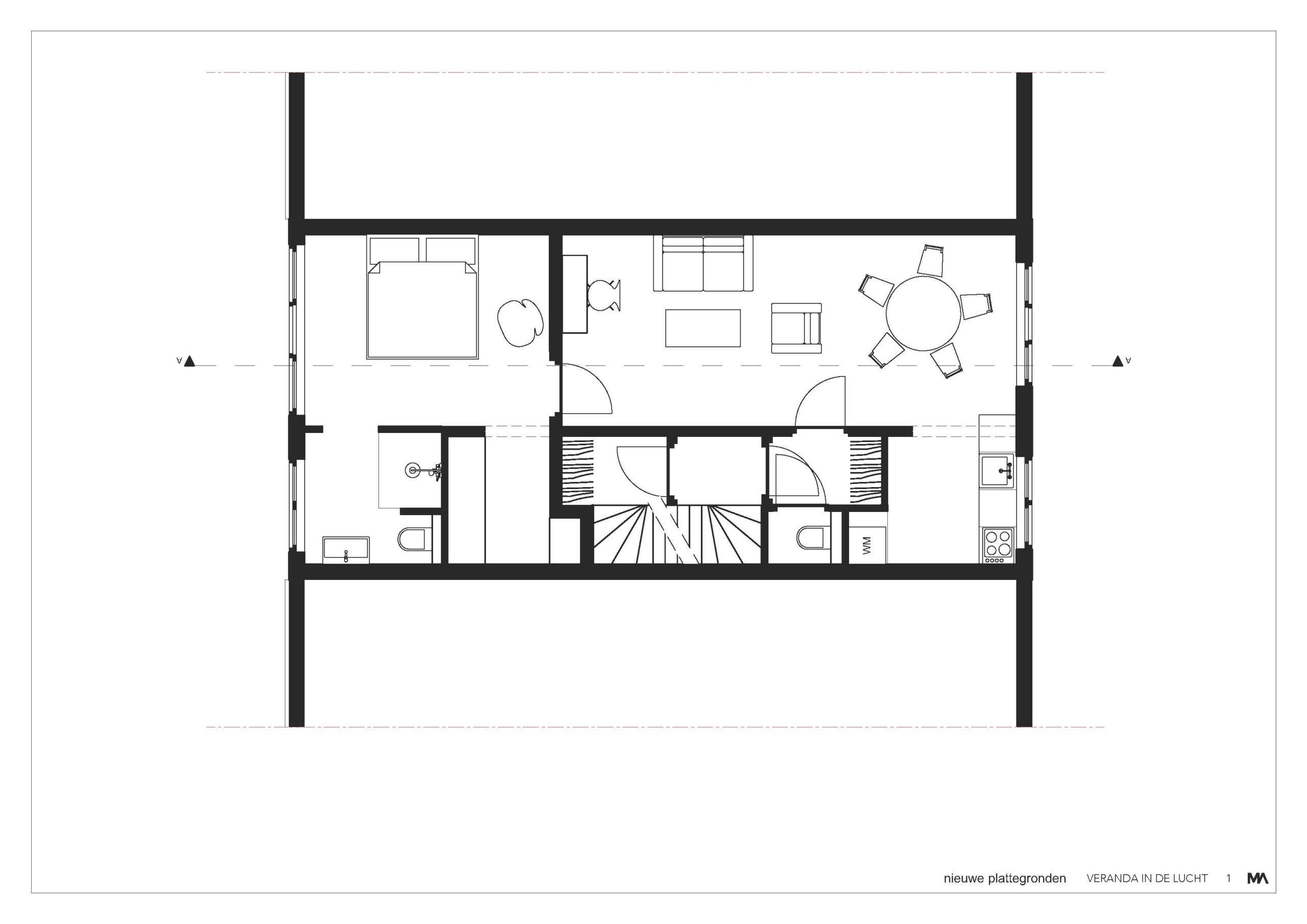
Dit creatieve en toepasbare ontwerp transformeert een veelvoorkomende klassieke tweelaagse bovenwoning in een Rotterdamse stadsuitbreiding uit 1905–1950 tot twee hoogwaardige stadswoningen. Door slim om te gaan met de bestaande structuur ontstaat een duurzame vorm van verdichting: er wordt toegevoegd zonder sloop, met behoud van karakter en minimale materiaalverspilling. De gesloten bouwblokken met platte daken vormen daarbij een robuuste basis voor een architectonisch doordachte ingreep. Centraal staat het royale, groene dakterras van circa 65 m²: een verhoogde tuin midden in de stad. Buitenruimte en groen zijn schaars voor bovenwoningen; juist daarom wordt de nieuwe woonlaag niet óp, maar bóven het terras geplaatst. Dit levert een uitzonderlijke ruimtelijke kwaliteit op: een beschutte veranda in de lucht, met zon en schaduw, privacy en uitzicht, waarin binnen en buiten naadloos in elkaar overvloeien. Dankzij de behoudende hoofdstructuur en het gebruik van lichte, prefab bouwmethoden blijft de ingreep betaalbaar en snel te realiseren. De bestaande ontsluiting wordt doorgetrokken naar dakterras en vierde verdieping: een appartement van 65 m² en een bovenwoning van c95 m²: een toekomstbestendige woonoplossing waarin groen, comfort en verdichting overtuigend samenkomen.
Project voor afbeelding
Project na afbeelding

Stem op je favoriete ontwerp

Stemmen gesloten.