voor-uitbouw

Deelnemer

Stein van Brunschot en Vincent Janssen

Provincie

Noord-Brabant

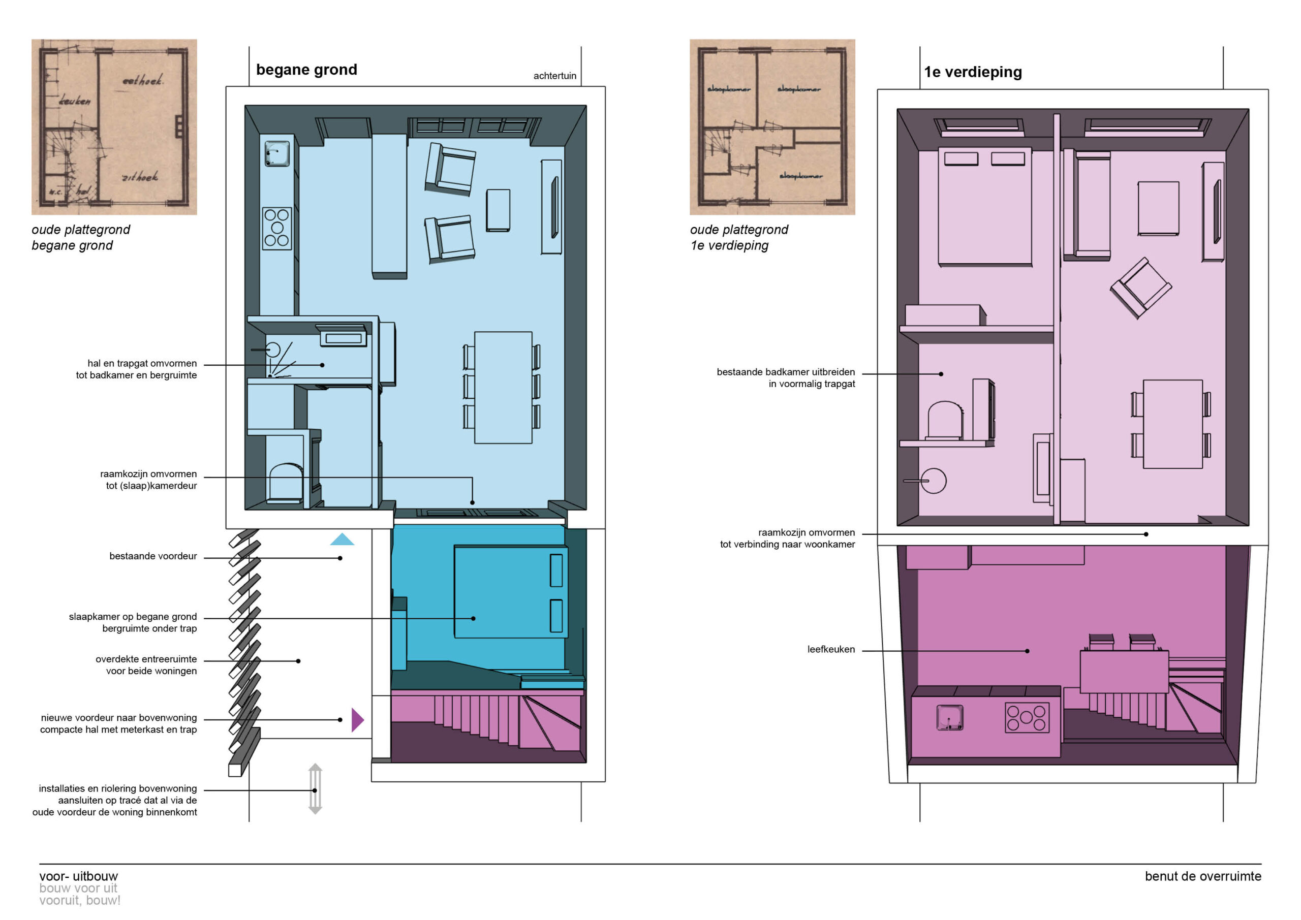
De voor-uitbouw richt zich op naoorlogse rijwoningen, veelal bewoond door babyboomers en vaak eigendom van woningcorporaties. Deze woningen hebben diepe voortuinen. Hierin plaatsen we de voor-uitbouw: een biobased prefab houten module geproduceerd in een timmerfabriek. Hierdoor wordt de woning op een duurzame, efficiƫnte en toekomstbestendige wijze opgesplitst in twee compacte woningen. De voor-uitbouw met o.a. slaapkamer maakt de benedenwoning volledig gelijkvloers en levensloopbestendig. Via een extra voordeur en trap in de voor-uitbouw wordt de bovenwoning bereikt op de voormalige eerste verdieping. Deze aanpak benut de overruimte, verhoogt de woonkwaliteit en draagt bij aan sociale duurzaamheid. Ouderen kunnen langer zelfstandig blijven wonen, terwijl tegelijkertijd extra, betaalbare en toekomstbestendige woningen worden toegevoegd binnen bestaande wijken.
Project voor afbeelding
Project na afbeelding

Stem op je favoriete ontwerp

Stemmen gesloten.